18586833311
0851-85622159
住宅小区及单位停车位-建筑防火间距的争议、探讨!
发布时间:2019-09-11
关于“禁止隐形消防车道和登高车场地”的规定,应予支持!
石峥嵘:多年的调研发现,基本很难保证隐形消防车道和隐形消防车登高操作场地的长期有效性!
发布时间:2019-09-10
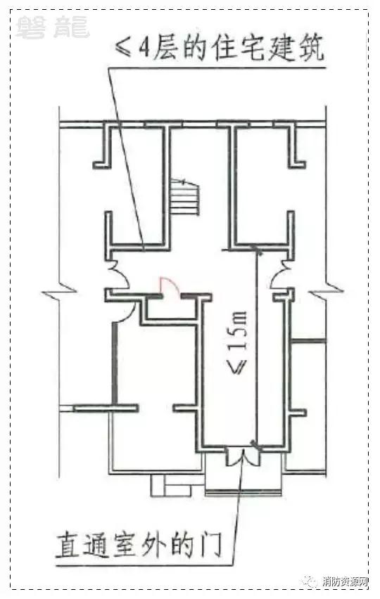
袋形走道-概念及应用!
发布时间:2019-09-09
稳压泵流量不应小于泄漏量和系统自动启动流量!
石峥嵘:在部分自动灭火系统中,要求系统具备自动启动功能,不能完全依靠火灾自动报警联动控制系统启动。
怎样执行新版消防技术规范!
石峥嵘:新版消防技术规范,应参照“公消[2015]98号”文件的相关精神执行! “公消[2015]98号”文件发布于2015年4月27日,明确了《建筑设计防火规范》(GB 50016-2014)以及后续发布的其他新版消防技术规范的执行要求,原文摘录如下: ..
消防规范用词说明、黑体与非黑体条文区别及规则!
发布时间:2019-09-05
设备用房与汽车库-疏散关系及应用误区!
发布时间:2019-09-02
敞开楼梯间的基本概念,与敞开楼梯的区别及应用!
防火墙-从上至下均应处在同一轴线位置,附争议探讨!
发布时间:2019-08-31
规范争议-《建规》5.5.8图示的隐与忧!
发布时间:2019-08-29
层高受限的设备层、管道层-消防设施要求
发布时间:2019-08-28
汽车库设置防火卷帘,是否需要参照《建规》对应用长度进行限制?
争议由来:《建筑设计防火规范》6.5.3第1款对防火卷帘的应用长度进行了限制,那么汽车库设置防火卷帘时,是否需要参照此条款对应用长度进行限制?
发布时间:2019-08-27
难以完成的“泡沫-水喷淋”设计,处置方法,流程分解!
发布时间:2019-08-26
商业服务网点-相邻单元门窗洞口是否需要防火分隔措施?
石峥嵘:规范没有明确商业服务网点单元开口之间的防火分隔措施要求,应予重视,宜参照相关规定执行!关联文章:1、商业服务网点-建筑防火及消防设施要求!2、“迎火面·侧火面”&“防火间距”-怎样合理处置,灵活应用!
规范探讨-消防车道与建筑外墙的距离要求!
石峥嵘:规范要求“消防车道靠建筑外墙一侧的边缘距离建筑外墙不宜小于5m”,本条文用词为“不宜”,同时并没有约定最远距离,存在较大争议!
发布时间:2019-08-23
扩大封闭楼梯及前室直通室外的距离,及直通室外15米楼梯间形式的..
石峥嵘:针对楼梯间直通室外距离及楼梯间形式的争议,阐述观点如下,以供参考: 1、首层扩大前室直通室外的门与楼梯间的距离,“公消〔2018〕57号”和“公津建字【2015】27号” 文件并不矛盾,实际应用中,应协调处置! ..
应急照明疏散指示系统-回路灯具的连接方式!
发布时间:2019-08-20
局部消防验收-基本条件及相关措施要求!
石峥嵘:仅局部消防验收投入使用的项目,由于未验收部分可能存在功能缺陷,无法保证消防安全,甚至可能波及已验收部分,必须采取严格的防火防烟分隔措施,严加管理,并应在未验收部分配置基础消防设施。
发布时间:2019-08-19
同一保护对象,不可兼得的气体灭火系统和排烟系统!
石峥嵘:当某防护区同时需要设置气体灭火系统和排烟系统时,我们只能两者取其一,只需要设置气体灭火系统即可。
“迎火面·侧火面”&“防火间距”-怎样合理处置,灵活应用!..
发布时间:2019-08-16
住宅建筑楼梯间的首层疏散门,是否需要保证1.1米?
发布时间:2019-08-15
汽车库坡道-防火分隔及自动灭火系统,处置措施·疑难探讨!
按照汽车坡道形式,常见的主要有:1)楼层式汽车库;2)斜楼板式汽车库;3)错层式汽车库。 一、对于需要设置自动灭火系统保护的错层式和斜楼板式汽车库,由于防火分区较难分隔,停车区与车道之间也难分隔,车道、坡道上方均应设置洒水喷头保..
发布时间:2019-08-14
我国特殊场所消防器材行业未来发展空间广阔
发布时间:2019-08-13
消防施工现场的预案编制是什么?
防火门开启角度,与疏散净宽度的关系及对策!
目前的防火门及常规疏散门,虽然都能保证在120°(甚至150°)时正常开启,但在确定最大疏散净宽度时,宜采用90°,说明如下: 确定疏散门有效开启时的开门角度,主要关系三个指标: 1、开启后应尽量确保疏散门的最大净宽度; 2、开..
发布时间:2019-08-12
从火灾风险等级,看安全疏散路径的确立原则!附误区分解!
为方便理解,我们按火灾危险程度,将室内房间等视为危险区域,疏散走道视为次危险区域,前室和疏散楼梯间视为相对安全区域。疏散路径的基本确立原则如下:
子母式防火门-主要概念及应用误区
子母式防火门,是一种特殊的双门扇对开门,由一个宽度较小的门扇(子门)与一个宽度较大的门扇(母门)构成。通常情况下,子门通过插销固定,不会安装闭门器,也就是说,这种子门不具备自动关闭的功能。
发布时间:2019-08-08
防火门-主要功能及部件(3D)
发布时间:2019-08-07
泡沫喷雾灭火系统-概述及主要应用
发布时间:2019-08-06
展览建筑-建筑防火及消防设施要求!
发布时间:2019-08-05
非编码型、编码型-火灾探测器
(本信息来源于网络,如有侵权请联系删除)
多线制、总线制火灾报警控制系统
多线制、总线制火灾报警控制系统 ..
发布时间:2019-08-01
防排烟系统-3D分解(3分秒懂!)
由石峥嵘老师讲解的防排烟系统,适应了最新修订的防排烟标准图示要求,以及相关贯宣会议精神,同时结合了《火灾自动报警系统设计规范》、《建筑设计防火规范》等相关规范标准要求,分为防烟和排烟两部分。 要点分享: 1、防烟系统和排..
特大型、大型、中型和小型消防应急标志灯具-分类及应用!
第一章 规格分类 一、出口指示标志灯具:为了保证人员对设置在不同高度的出口指示标志均能清晰识别,将出口指示标志灯具分为I(小型)、Ⅱ(中型)、Ⅲ(大型)和Ⅳ(特大型)4种规格: 二、方向标志灯具:为了保证人员对设置在不同高..
发布时间:2019-07-22
敞开楼梯间、敞开式外廊对安全疏散距离的影响,安全疏散距离的处..
《建筑设计防火规范》5.5.17规定了公共建筑内安全疏散距离的相关要求,明确了敞开楼梯间、敞开式外廊以及自动灭火系统等对安全疏散距离的影响。 第一章 基本规则 一、直通疏散走道的房间疏散门至最近敞开楼梯间的直线距离,应按规定减少。 ..
发布时间:2019-07-15